适用范围

SRW2-1600万能式断路器(以下简称断路器),适用于交流50Hz,额定电压400v、690V,额定电流200A至1600A的配电网络中,用来分配电能和保护线路及电源设备免受过载、欠电压、短路、漏电等故障的危害。断路器具有智能化保护功能,选择性保护精确,能提高供电可靠性,避免不必要的停电。断路器具有开放式通讯接口,可实现四遥,以满足自动化系统集中控制的要求。
630A及以下断路器可用作直接操作电动机,作为控制电动机的偶然起动、停止之用。
断路器符合GB14048.2《低压开关设备和控制设备 低压断路器》和IEC60947-2《低压开关设备和控制设备第2部分:低压断路器》等标准。
产品型号含义及分类

一些常见的型号有:SRW2-1600
分类
1.按安装方式分: b.欠电压瞬时(或延时)动作脱扣器
a.固定式 b.抽屉式 c.分励脱扣器
2.按级数分: 5.按进出线方式分:
a.三级 b.四级 a.垂直进出线 b.水平进出线
3.按操作方式分: 注:母排可以旋转90°,水平接线与垂直接线可随意转换
a.电动操作 6.按智能型过电流控制器分:
b.手动操作(检修、维护用) a.L型(经济型)
4.按脱扣器种类分: b.M型(普通智能型)
a.智能型过电流脱扣器 c.H型(通讯用)
三种控制器的功能如表1所示

注:以上“▲”标志为增选功能,其余为基本配置功能,以上“●”标志见如下详细说明:
1.M、H型如若增选“漏电保护”功能,则无接地保护功能;
2.对于M型,“功能表”为增选功能,但对于H型而言,“功能表”为基本配置功能。
主要技术参数
1.断路器的额定电流规格见表2

2.断路器的基本参数见表3

注1:飞弧距离为零;
注2:表中的分断能力上、下进线相同。
3,脱扣器的电流整定值Ir及允差见表4

注1:表中Ir1表示长延时保护整定电流,Ir2表示短延时保护整定电流,Ir3表示瞬间保护整定电流,Ir4表示接地保护整定电流;
注2:用于690V时,瞬时保护整定电流的最大整定值为10kA;
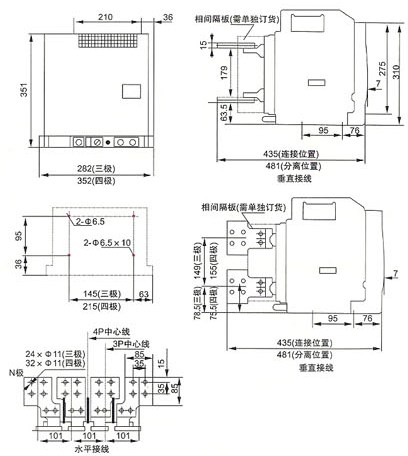
注3:当具有三段保护时,整定值不能交叉,且Ir1 4.长延时过电流保护反时限动作特性见表5 注:2.0Ir1的时间按I²T=(1.5Ir1)²tL计算,其中tL为1.5Ir1时动作时间,由用户整定。 5.短路短延时过电流保护动作特性见表6 L型控制器为定时限动作特性,当过载电流I超过设定值tsd,控制器分别按0.2s和0.4s二档时间中的一档延时保护。 6.接地故障保护特性 接地故障时间整定值t4见表7,接地故障出厂时时间整定值为“OFF”。 注:L型脱扣器接地故障时间整定值为0.2s、0.4s可选。 断路器的操作性能 7.断路器的操作性能用操作循环次数表示,见表8. 8.断路器的分励脱扣器、欠电压脱扣器、电动操作机构、释能(闭合)电磁铁、智能型脱扣器的工作电压见表9. 注:分励脱扣器的可靠动作电压范围为(70%~110%)Us,释能(闭合)电磁铁为(85%~110%)Us。 9..断路器的欠电压脱扣器 欠电压脱扣器为欠电压瞬时脱扣器和欠电压延时脱扣器两种。欠电压脱扣器通过欠电压延时装置上的拨动开关,调整延时时间,延时时间的整定值为0.3s、0.5s、1s、3s、5s。在1/2延时时间内,电源电压恢复到85%Ue及以上时,断路器不断开;电源电压在35%~70%Ue时能使断路器断开;电源电压≤35%Ue时断路器不能闭合。 10.辅助触头的性能 辅助触头为四常开四常闭转换触头,其它参数见表10。 注:有关SRW2系列万能式断路器更详细的介绍,请见本公司新产品样本。 SRW2-1600系列万能式断路器的外形及安装尺寸 SRW2-1600/200~1250抽屉式断路器外形尺寸及安装尺寸 SRW2-1600/1600抽屉式断路器外形尺寸及安装尺寸 SRW2-1600/200-1250固定式断路器外形尺寸及安装尺寸 SRW2-1600/1600固定式断路器外形尺寸及安装尺寸 SRW2-1600抽屉式断路器面板开孔尺寸 如果你希望了解SRW2-1600系列万能式断路器的更多内容,如产品使用说明书,价格,维修更换等信息,请联系我们。










其他资料:



















